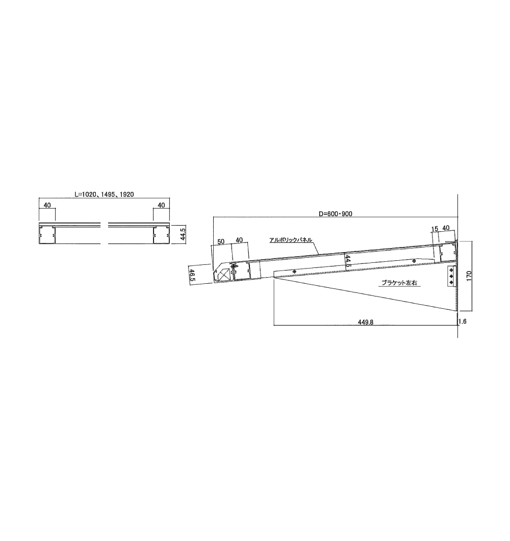
アルミ庇
- 取付金具とアームは丁番で連結しています。
- 工場で取付金具をセットし、アームを畳んだ状態で運送できます。
- 本体は現場ではめ込みビス止めします。
オリジナル庇施工方法
サムネイルをクリックすると拡大画像が開きます。
標準仕様
| 出幅 | 600㎜、900㎜ |
|---|---|
| サイズ | ●L=1020㎜、1495㎜、1920㎜ |
| カラー | ●ブロンズ ●シルバー ●ブラック(特注色) |
| 性能 | ●風荷重110kg/m² ●雪荷重100kg/m² 積雪50cm |
| 部材 | ●アルミ型材 ●アルミ複合版 |
※ 取付・施工上のご注意 ●取付 躯体の柱にビス止めして下さい。●庇の上に絶対に乗らないで下さい。
フラットレール
出入口引戸を間仕切り用に立ち上がりをなくす為のレール
網戸レール
出入口に取付ける事により、網戸付きとする事が可能です。
パネル押さえ
パネルを押さえてガタつきをなくします。
パネルを外側に押しつける事により、気密性と水密性が向上します。
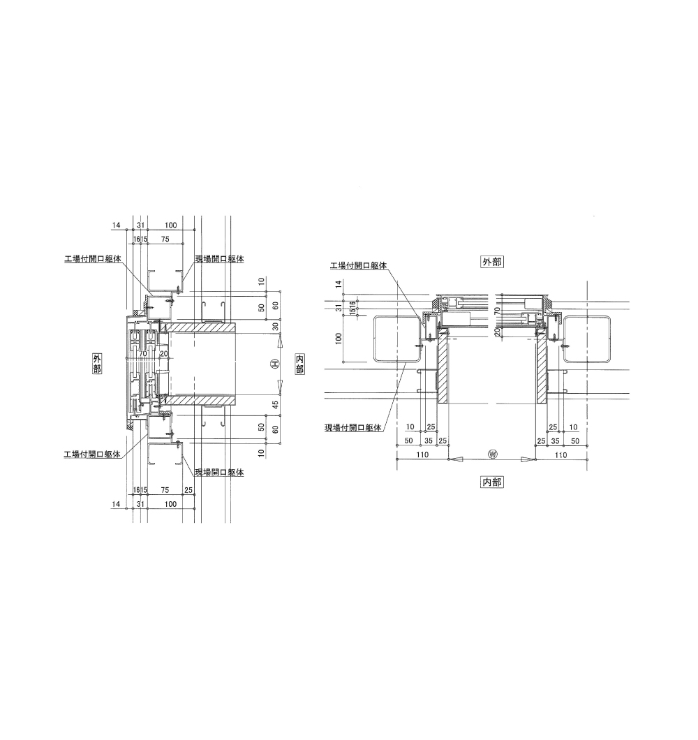
個別ビル用防火半外枠サッシ躯体一体仕様
半外枠仕様の個別防火サッシに開口躯体を工場付する事により
施工業者様に、ご依頼させて頂く、構造体の精度管理を緩和した製品です。

























